Difference between revisions of "Configure VPN Client"

From Idrive
Jump to navigation Jump to search
Line 226: Line 226:
 
===Addresses configuration===
 
===Addresses configuration===
  
stuff
+
Use the "+"button and add the addresses as shown [[Configure_VPN_Client#Static_Internet_IP_Address|Here]]
  
 
<br\><br\>
 
<br\><br\>

Revision as of 22:18, 26 December 2013

Mark Notes

Load default config file

Change ether1 address to the internet address of the customer location

Change the SSTP Dial Out address to the customers base station IP address

To Do: set time and timezone

set secure password / change user name?

<br\><br\>

Initial Configuration Setup

Set up RB751U-2HnD Router for initial configuration

Document the MAC addresses range from the bottom of the unit. IE 00:0C:42:AE:F2:7C - 00:0C:42:AE:F2:81 (5 addresses). These will be used to connect to the device and be logged in AdminCenter.

Connect to power

Connect cat 5 cable from Port ETH5 to the NIC for Idrive wireless

  • Change settings for wireless NIC on your computer to:
-192.168.88.10
-255.255.255.0

<br\><br\>

Connect using Winbox

Download and install Winbox Configuration tool for RouterOS.

Run Winbox.exe or double click the icon on the desktop

Winbox icon.jpg Rb2011 initial login.jpg

  • Enter the Default "Connect To" IP Address: 192.168.88.1
  • Login: admin
  • password: blank
  • Click "Connect"

Upon initial log in the "RouterOS Default Configuration" pop-up window will appear. Choose "OK". We are not concerned about the default settings because they will be overwritten with the idrive default configuration file.

Rb2011 initial login screen.jpg

<br\><br\><br\><br\>

Upgrade OS and Firmware

Obtain the latest versions (V6.x) from the MicroTik [|download] site

Click on the correct link for the hardware architecture (mipsbe for RB751U-2HnD)

Click on "All Packages" and click Save

Rb2011 downloads.jpg


Extract all of the files from zip package

Copy the files from your computer to the Router Board by dragging and dropping all of the files into the files list in the WinBox window

Rb2011 upgrade files list.jpg Rb2011 upgrade files list2.jpg

Restart the router and log back into the router and confirm that WinBox shows the new version of RouterOS and Firmware

Rb2011 system reboot.jpgRb751 firmware updated.jpg



<br\><br\>

Setup using Restore configuration file (Recommended)

Load Idrive Standard configuration

Rb751 files.jpg

For simplicity and consistency it is better to set the routers configuration using the RouterOS backup/restore function. This "restores" the standard idrive configuration from a .backup file. This will leave only a few custom settings that are specific to the customer location(s).


  • Unzip the file to the Desktop on your computer
  • In WinBox select “Files” from the left menu to open the Files List window.
  • Use the mouse to drag and drop the configuration file from the Desktop into the Files List (uploads the file to the Router)
  • Highlight the config file and click on "Restore"

The router will reboot with the new configuration. You will need to use the new IP address and password

-The new IP address for Ports 3 - 5 will be 192.168.0.3
-Change the IP address on your NIC to 192.168.0.10

Reconnect to the Router with the "Connect to" address of 192.168.0.3, password idrive#


<br\><br\><br\><br\><br\><br\>

Set Customer/Location Specific Settings

Static Internet IP Address

Click IP >Address to open the Address list form. Double Click on address to edit. All three interface addresses are shown open here. You should only need to change the ether1 address.

Rb2011 ip add pulldown.jpg

Rb751 ip addresses.jpg

Modify the internet connection address for the customer's location.

ether1 - This must be configured prior to shipment or you will not be able to contact the Transfer Point when it is installed at te customer location!!!.

  • Enter Static IP address (216.133.162.67/28 in this example)
  • Enter Network for (216.133.162.64 in this example)
  • Interface "ether1"


bridge_local - No need to change unless there is more than one Remote Transfer point in the Idrive system. This is the IP address that the base station will see. Ports 3,4,5 share this address.

  • IP Address 192.168.0.3/16
  • Network 192.168.0.0
  • Interface bridge_local


ether2 - Set by config file and does not need to be changed.

  • IP Address 1.1.1.2/24
  • Network 1.1.1.0
  • Interface ether2

<br\><br\>

Set SSTP Dial Out address

Set the Dial Out address (Static IP address of the base stations internet connection)This is the number that the Transfer Point "calls" to contact the base station.

Rb751 sstp dialout.jpg

<br\><br\>

Set Timezone for customer location

Set the timezone. The Date and time will be set by NTP (Network Time Protocol) when connected to the internet

Rb751 timezone.jpg

<br\><br\>


Advanced Configuration (no config file)

stuff

<br\><br\>

Interfaces configuration

Select "Interfaces" from the left menu and enable both "wlan1" and "ppp-out1".

Mikrotik-client2.jpg

<br\><br\>

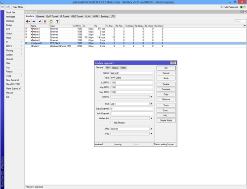
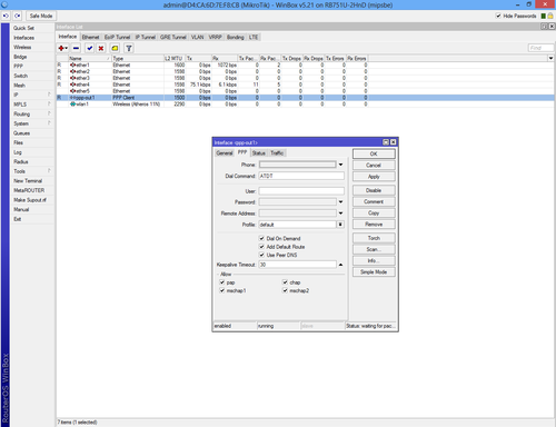
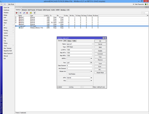
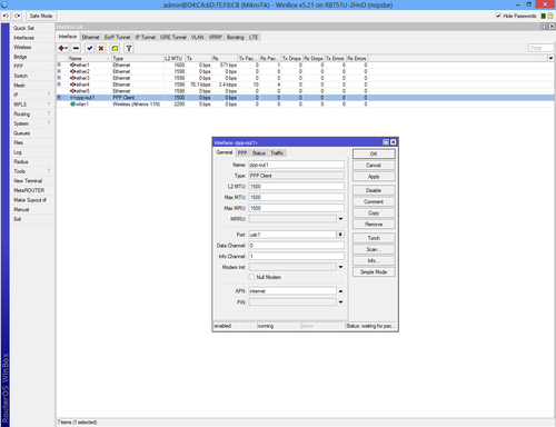
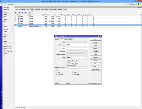
PPP configuration

Rb751 ppp conf1.jpg


Rb751 ppp profile1.jpg Rb751 ppp profile2.jpg


<br\><br\>

SSTP configuration

stuff

<br\><br\>

WLAN configuration

Return on "Interface List" double-click "wlan1", select "Wireless" tab and complete the fields as in picture.


Rb751 wlan conf.jpg

<br\><br\>

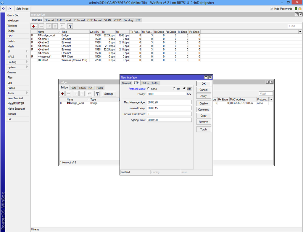
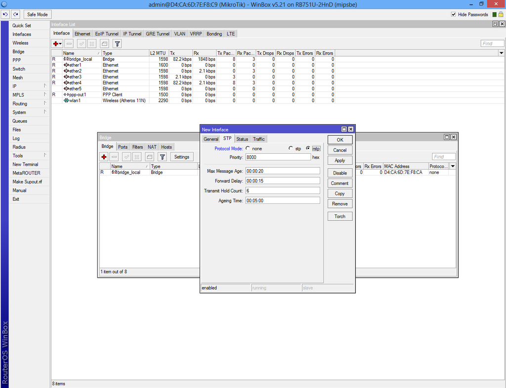
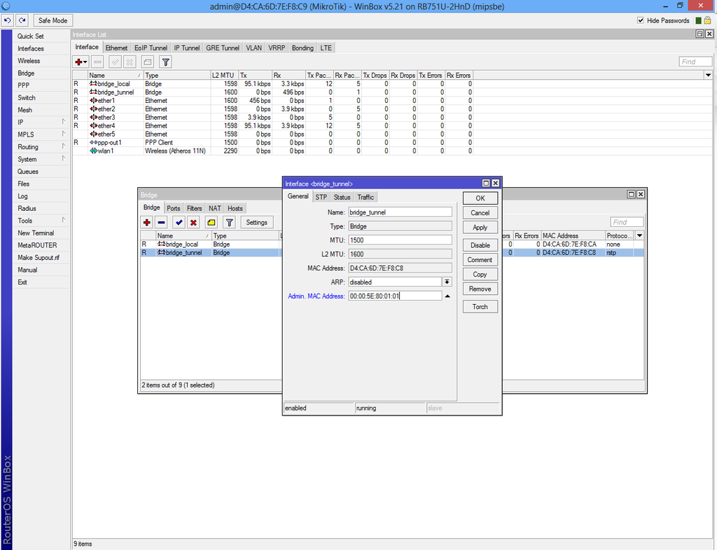
Bridges configuration

Select "Bridge" from the left menu and add new bridge. Configure the two bridges as shown.

for "bridge_tunnel" Make sure the "ARP" is disabled and enter the MAC Address: 00:00:5E:80:01:01 then select "STP" tab and check "Protocol Mode: rstp".

Rb751 bridges1.jpg

Rb751 bridges2.jpg

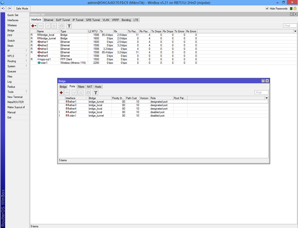
select "Ports" tab and add interfaces to the proper bridge as shown

Rb751 bridge ports.jpg

<br\><br\>

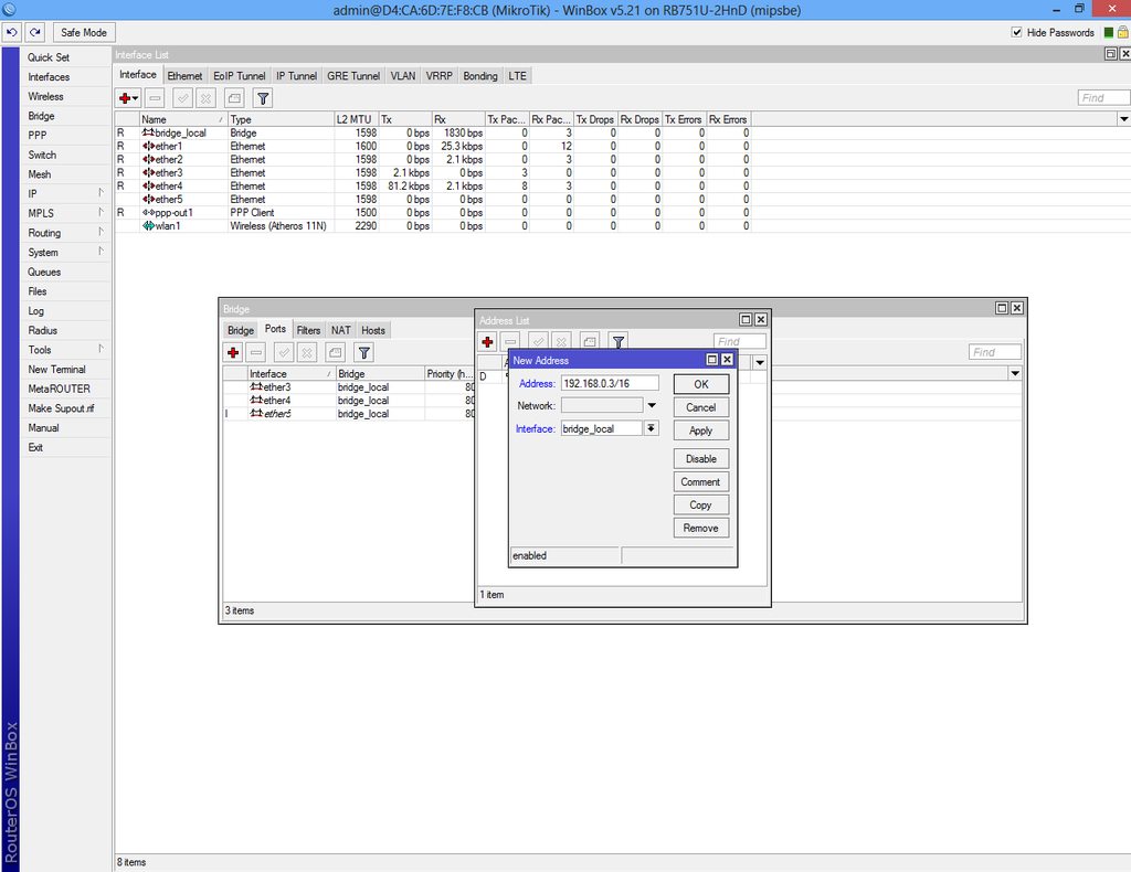
Addresses configuration

Use the "+"button and add the addresses as shown Here

<br\><br\>

Routes configuration

stuff

<br\><br\>

Addresses configuration

stuff

<br\><br\>


NTP configuration

stuff

<br\><br\>



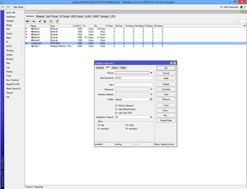
Connect your 3G USB dongle and restart router.

Return on "Interface List" and double-click "ppp-out1" and make sure that "usb1" option is selected. If the "Port" drop-down list is empty then your 3G dongle is not supported.

Our 3G USB worked by default without any other configuration. Click on "Advanced Mode" if your SIM does require mobile carrier configuration.


Mikrotik-client3.png
Mikrotik-client4.png
Mikrotik-client5.png



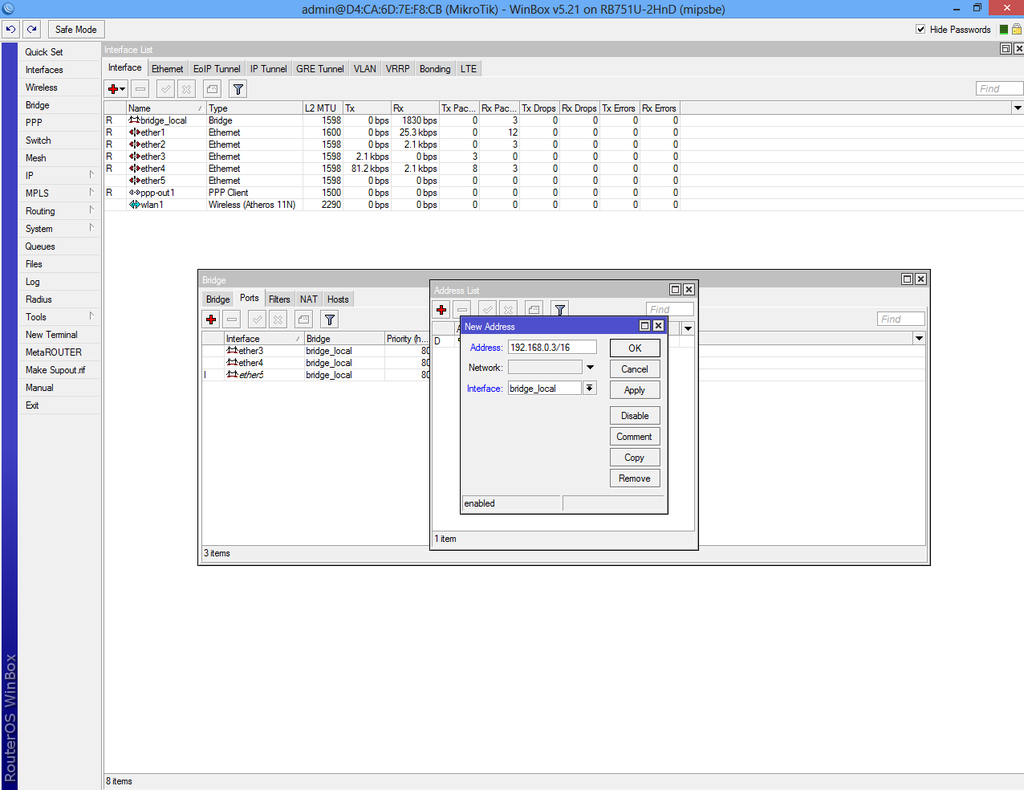
Select IP->Address List from the left menu and add a new address.


Mikrotik-client9.png


Return to "Bridge" and add a new bridge.



Mikrotik-client13.png


Mikrotik-client11.png


Select "Ports" tab from "Bridge" interface and add "ether1" and "wlan1" to "bridge_tunnel".


Mikrotik-client12.png


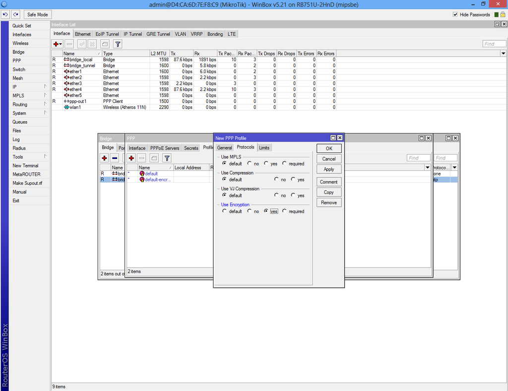
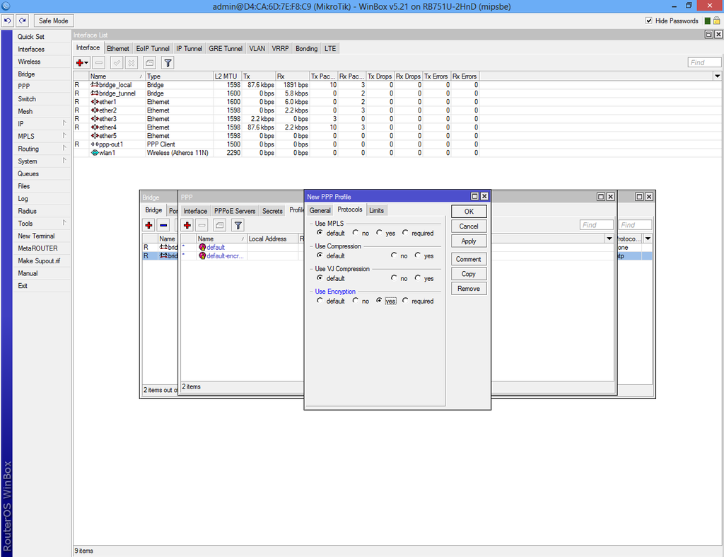
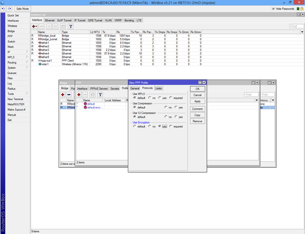
Select "PPP" from the left menu then go to "Profiles" tab and add new profile.

Complete the fields then select "Protocols" tab and check "yes" under "Use Encryption".


Mikrotik-client15.png


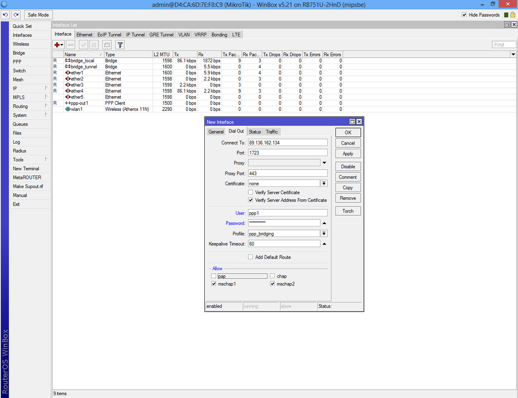
Return to "Interface List" and add new "SSTP Client".


Mikrotik-client16.png


In the "Dial Out" fill "Connect To:" with the VPN Server public IP, set port to 1723, enter the user name and password that you have created on VPN Server.

Uncheck "pap" and "chap" boxes from "Allow".


Mikrotik-client17.png


If the VPN Server is configured the status will appear as connected. If the VPN Server is not configured then check Configure VPN Server.


Mikrotik-client18.png